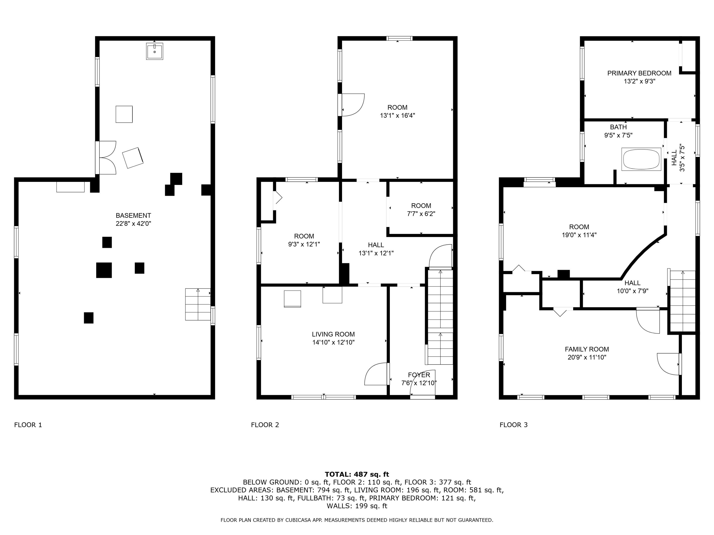
Bring your vision to this c. 1900 historic home nestled in the heart of Bath-just one minute to Bath Iron Works and three minutes to downtown. Located in the South End on a one-way street, this residence showcases vernacular Greek Revival architecture with pilasters, frieze band, broken pediment, a front porch, and an asymmetrical entry. The eat-in kitchen and adjacent bath is down to the studs and await your finishing touches, offering the opportunity to tailor these spaces to your taste. A westerly-facing first-floor bonus room provides the ideal setting for a home office, while the sun-filled, southerly-facing living room flows seamlessly onto the covered porch-perfect for relaxing or entertaining. A grand staircase leads to the second floor, where a beautiful curved plaster wall accompanies three bedrooms and a full bath that's been taken back to the framing and is ready to be reimagined. The spacious, unfinished attic offers additional storage or potential for future expansion. Set on a generous lot with ample parking, this property combines historic charm with modern potential-just 13 minutes to Brunswick, 22 minutes to Popham Beach State Park, and 38 minutes to Portland.

Listing Tools

Property Details of 31 Bath Street

Property Details

Interior Features

Exterior Features

Utilities and Appliances

Map Location

Driving Directions

Listing data is derived in whole or in part from the Maine IDX & is for consumers' personal, non commercial use only. Dimensions are approximate and not guaranteed. All data should be independently verified. ©2025 Maine Real Estate Information System, Inc. All Rights Reserved. equal opportunity housing logo   Privacy Policy

Bearfoot Realty participates in ©2025 Maine Listings Internet Data Exchange program, allowing us to display other Maine IDX Participants' listings. This website does not display complete listings. Certain listings of other real estate brokerage firms have been excluded. Mortgage figures are estimates. Check with your bank or proposed mortgage company for actual interest rates. This product uses the FRED® API but is not endorsed or certified by the Federal Reserve Bank of St. Louis.

Hi there! How can we help you?

Contact us using the form below or give us a call.

Send Us A Message:

I agree to receive marketing and customer service calls and text messages from Bearfoot Realty. To opt out, you can reply 'stop' at any time or click the unsubscribe link in the emails. Consent is not a condition of purchase. Msg/data rates may apply. Msg frequency varies. Privacy Policy.

Do not fill in this field:

This site is protected by reCAPTCHA and the Google Privacy Policy and Terms of Service apply.

Hi there! How can we help you?

Contact us using the form below or give us a call.

Send Us A Message:

Do not fill in this field:

This site is protected by reCAPTCHA and the Google Privacy Policy and Terms of Service apply.

Hi there! How can we help you?

Contact us using the form below or give us a call.

Send Us A Message:

Do not fill in this field:

This site is protected by reCAPTCHA and the Google Privacy Policy and Terms of Service apply.

Do not fill in this field:

This site is protected by reCAPTCHA and the Google Privacy Policy and Terms of Service apply.

Do not fill in this field:

This site is protected by reCAPTCHA and the Google Privacy Policy and Terms of Service apply.

Do not fill in this field:

This site is protected by reCAPTCHA and the Google Privacy Policy and Terms of Service apply.

$

Do not fill in this field:

This site is protected by reCAPTCHA and the Google Privacy Policy and Terms of Service apply.